高岡市羽広 居宅
オススメPoint
商業集積の高いR8号沿いの店舗兼用住宅!
鉄骨造3階建!家族経営にはもってこい!
| 価格 | 950万円 | 物件種目 | 店舗・居宅 | ||
|---|---|---|---|---|---|
| 所在地 | 高岡市羽広573-1 | ||||
| 交通 | あいの風とやま鉄道 高岡やぶなみ 徒歩15分 | ||||
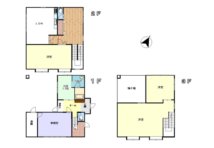
| 築年月 | 1988・6 | 建物面積 | 215.53㎡ | 土地面積 | 223.46㎡ |
| 間取り | - | 階建 / 階 | 3階建 |
|---|---|---|---|
| 土地権利 | 所有権 | 建物構造 | 鉄骨造 |
| 駐車場 | 有り | リフォーム | - |
| 設備 | 上下水道 | ||
| 都市計画 | 市街化区域 | 用途地域 | 準工 |
|---|---|---|---|
| 接道状況 | 公道 | 私道負担面積 | - |
| 建ぺい率 / 容積率 |
60% / 200% | セットバック | - |
| 地目 | 宅地 | 地勢 | 平坦 |
| 備考 | 公簿売買及び現況有姿売買。準防火地域。 居住中につき内覧ご希望の際は予めご連絡ください。 |
||
| 現況 | 居住中 | ||
|---|---|---|---|
| 引渡し | 相談 | 取引態様 | 媒介 |
| 情報公開日 | 2025・10・9 | 最終更新日 | 2025年12月3日 |
| 西部小学校 | 約1.3キロ | 西部中学校 | 約1.4キロ |
|---|---|---|---|
| 双葉こども園 | 約540メートル | ローソン羽広店 | 約370メートル |
| サンコー木津店 | 約1.2キロ | Vドラッグ羽広店 | 約330メートル |
| 厚生連高岡病院 | 約490メートル | 若富郵便局 | 約550メートル |

